HB Yamaha F6C : option production électrique 12v

Bonjour,
Je ne suis pas calé en électricité...
Qui sait comment est généré le courant 12v par le dispositif en option sur la série des moteurs 4T Yamaha ?
La liste des options donne une référence qui s'appelle une fois "bobine d'éclairage" un autre fois générateur électrique" ou "stator", et je me perds un peu dans ce qu'il faut ajouter pour que le moteur produise du 12v à destination de la batterie du bateau.

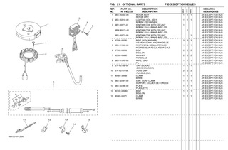
P29 le schéma (photo 1) indique plusieurs pièces.
Mais faut il changer la bobine d'allumage (n°3) alors qu'il y en a une d'origine ?
Le redresseur (n°5) est lui indispensable n'est-ce pas ?

Faut il un "Kit" complet avec plusieurs éléments, bobine(s), rotor, redresseur (?!) ?
Les petites annonces Google et consort proposent la bobine (n°2) seule, ce qui me semble insuffisant.

Merci d'éclairer ma lanterne, surtout si vous avez réalisé vous même le montage et l'achat.
Pierre

L'équipage
31 oct. 2025
01 nov. 2025

Bonsoir, pouvez-vous poster une photo de votre moteur sans le couvercle? Vous devriez déjà avoir certaines de ces pièces en place.


Elpeyo, le poisson rouge:@LPDJOUR : Avec un peu de retard, les photos sont postées plus bas, merci de votre suivi.·le 04 nov. 07:19
02 nov. 202502 nov. 2025

Salut Pierre

Tu as déjà sur ton moteur la 2 et la 3 de l'éclaté, soit tes deux photos.

Tu peux vérifier si c'est les mêmes ref que pour le moteur sans alim.

Il te manque le régulateur 5. Ça c'est obligatoire, et sans doute aussi la nappe 8.

Par expérience, c'est bien de mettre un coupe circuit entre la sortie régulateur et la batterie. Cela te permet de couper l'alimentation quand la batterie est chargée.


Elpeyo, le poisson rouge:Salut Jacques, merci, tu me dépatouilles. ·le 03 nov. 04:30
03 nov. 2025

Je viens d'en faire l'acquisition pour un Yamaha 5 cv 4T
urls.fr[...]/4W2svN
ce kit est vendu par GUYONNET NAUTIC 64320 BIZANOS
Estey


Elpeyo, le poisson rouge:Ok John, avec ce lien tu me donnes un bon contact, je vais appeler.·le 03 nov. 04:31
estey:PS : j'avais également fait installer ce kit de recharge, en 2012, sur un Yamaha 6 chevaux 4 temps, lors installé sur un start6 : le résultat avait été très satisfaisant, maintenant la charge d'une batterie, pendant la saison, pour faire fonctionner le Loch, le sondeur ,le pilote la VHF et la girouette anémomètre ainsi que l'éclairage intérieur et si nécessaire les feux de route et de mât. Sur mon kelt 620 le Yamaha 8 Cv en est également équipé avec le même résultat.. Sur le 5 chevaux Yamaha, ce même kit est destiné à maintenir la charge de la batterie sur un Arcachonnais. Estey.·le 03 nov. 23:45

Vues prises sous le capot pour LPDJOUR


04 nov. 2025

Merci pour les photos. Sous le capot noir du démarreur, normalement sur le côté du bouchon de remplissage d'huile, vous devriez avoir deux fils verts, ils pourraient être ailleurs sous le capot du démarreur. Ces deux fils proviennent de l'bobine d'éclairage et se connecteront à un redresseur/régulateur, à la sortie du red/reg vous devriez avoir 13.1 à 13.6 AC. Le prix est d'environ 20 euros en ligne. Cherchez bien les deux petits fils verts, ils devraient être là :-)


04 nov. 2025

Si vous n'avez pas les 2 petits fils, vous devez installer la pièce #2 et la connecter à la pièce #5. Puis de la pièce #5 à la batterie. Mais je suis presque sûr que la pièce #2 est déjà installée.


04 nov. 2025

Mer et Méca. Il peut être utile, même moteur


04 nov. 2025

Pardon, Je voulais parler du site pas du moteur 2 temps….en regardant les videos de ce monsieur , il y des videos qui parlent du yam 4 temps.


04 nov. 2025

Vous pouvez également suivre le fil vert du stator à la bobine d'allumage, vous déconnecter de la bobine d'allumage et le brancher à la prise fournie dans le régulateur, ce qui permet à la bobine d'allumage et au régulateur de recevoir le courant du stator en même temps.


Vue sur le château d'If  depuis les iles du Frioul    Méditerranée   France

Phare du monde

  • 4.5 (45)

Vue sur le château d'If depuis les iles du Frioul Méditerranée France

2022